Stgt-Kaltental · St. Antonius
Informationen und Links
Die St. Antonius - Gemeinde ist eine von drei katholischen Kirchen-gemeinden im Süden Stuttgarts
· St. Maria (Mitte) ==> kirchen-online
· St. Josef (Heslach)
· St. Antonius (Kaltental)
Sie bilden zusammen die Gesamtkirchengemeinde Stuttgart-Süd.
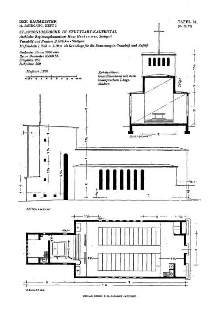
Erbaut 1930 -1932 von Hans Herkommer, auf politischen Druck 1938 umgebaut (Turm), Anfang des 21. Jahrhunderts neu gestaltet durch Pfeifer-Kuhn Architekten
Informationen zu Hans Herkommer u.a. auf Wikipedia,  Strasse der Moderne,  saai | Archiv für Architektur und Ingenieurbau
Chorwand-Fresco: Albert Burkart (1932)
Altar, Ambo, Tabernakel, Taufbecken, Marienkapelle: Madeleine Dietz (2006) ==> Wikipedia
Orgel (lt. Website der Kirchgemeinde) von Orgelbau Schmid Kaufbeuren e.K. (19 Register - II/P - mechanisch)
Altarweihe der Neugestalt: 21.10.2006 (Weihbischof Dr. Johannes Kreidler); dazu erschien eine kleine, schöne Broschüre, aus welcher nachfolgend zitiert wird mit der Quellenangabe "Festschrift 2006"
Ausführlich und exzellent im Aufbau wird die St. Antoniuskirche dargestellt auf der Website "Strasse der Moderne"
Texte von Dr. Karin Berkemann, diverse Fotos
Die Neugestaltung beschreibt der Architekt Günter Pfeifer auf eigener Website und bei baunetz-architekten
Inhalt
Allgemeine Hinweise · Links
- 1.1 · Außen
 - 1.2 · Die "große Schwester" in Schneidemühl / Piła
 - 2.1 · Grundriss
 - 2.2 · Innen Übersicht
 - 3 · Orgel
 - 4 · Madeleine Dietz: Ambo, Altar, Taufbecken, Marienkapelle
 - 5 · Fresco (Albert Burkart) an der Chorrückwand · Tabernakel (Madelaine Dietz)
 - 6 · Die Antoniuskirche 1932
 - 8 · Exkurs: Kirchbau in Stuttgart zwischen 1921 und 1938
 - 9 · Das Innere der Kirche vor der Neugestaltung 2005
 - Kanzel - Ambo
 - 10 · Unterlagen aus dem Pfarrarchiv St. Josef Heslach / St. Antonius Kaltental
 - Impressum
 
Informationen auch auf www.kirchbau.de
Über die Probleme, mit denen der Architekt Hans Herkommer und die St. Antoniusgemeinde 1930/32 zu kämpfen hatten, sowie die durch die Stuttgarter Nationalsozialisten 1938 erzwungene Umgestaltung des Turmes siehe unten ab Ziff. 6.
St. Antonius von Padua auf Ökumenisches Heiligenlexikon
· Eine Auswahl mit weiteren Darstellungen auf kirchen-online.org und hier auf kirchen-online.com
Geschichte
"Von hervorragend schönem Platz auf vorgeschobener Geländemasse des Schlossberges im Vorort Kaltental grüßt das neue Kirchlein herunter ins langgestreckte, schmale Tal mit seiner verkehrsreichen Durchgangsstraße nach Böblingen, Tübingen, Rottweil. An historischer Stätte, nächst den Fundamenten des alten Schlosses von Kaltental ist es errichtet über verlassenem Steinbruch und über einstigem Wallgraben, mit seiner Pfeilergründung solid auf dem Felsgrund fußend ...", so schreibt der Architekt Hans Herkommer über die 1932 dem heiligen Antonius geweihte Kirche. Eine Kleinkirche ("...weder eine vergrößerte Kapelle noch eine verkleinerte Großkirche ..") war geplant, für die seit den 20er Jahren des 19. Jahrhunderts stetig wachsende Zahl der Kaltentaler Katholiken, und wurde dann in einer Abwandlung des Stils alter Basiliken gebaut. Schon damals wurde die klare schlichte Form der "Wegekirche" gelobt, die den liturgischen Bedürfnissen der Gegenwart entsprach, ebenso gelobt wie das Altarbild des Münchner Künstlers Albert Burkart, dessen gekreuzigter Christus sich den Heiligen Antonius und Franziskus unterm Kreuz und damit der ganzen Menschheit zuneigt.
Nach dem Krieg wurde über die Kirche hinaus der Wunsch nach Eigenständigkeit und nach Räumen für Geselligkeit und Gemeinschaft stärker. 1946 wurde die Kaltentaler Gemeinde, die bis dahin zuerst zu St. Maria, dann zu St. Josef gehörte, selbstständig. Schon kurz nach dem Krieg wurde durch die Vermittlung des Caritas-Verbandes ein Kindergarten gebaut. Aber erst 1962 konnte nach langem Ringen um Bauplatz und Baugenehmigungen ein Gemeinde- und Pfarrhaus gebaut werden, das den Namen des heiligen Franziskus trägt.
.
2005 wurde die Kirche bei der Renovierung umgestaltet, die Raumgestaltung durch die Architekten Pfeifer und Kuhn aus Freiburg und die Künstlerin Madeleine Dietz dem "Communio"-Gedanken des II. Vatikanischen Konzils angepasst: Der Altar ("Tisch des Mahles") rückt vom Chorraum in die Mitte des Raumes und versammelt hier das Volk Gottes, Priester und Gemeinde, in einem Brennpunkt, während der Ambo ("Tisch des Wortes") zum zweiten Brennpunkt des weiten Raumes wird, entsprechend der Bedeutung des Wortes Gottes in der Liturgie seit dem II. Vatikanischen Konzil.
Der Chorraum (damals mit dem Altar) als Ziel der herkommerischen Wegekirche dient nun als Andachtsraum vor dem Tabernakel und dem Altarbild Burkarts, das die Farbgestaltung des neuen Raumes bestimmte. Eine kleine Marienkapelle auf der gegenüberliegenden Eingangsseite lädt ebenfalls zu Stille und Besinnung.
Ein neu gestalteter Verbindungsraum- bzw. gang führt von der Kirche, dem Ort des gemeinsamen Gebets und Gottesdienstes, in den ebenfalls neu renovierten Gemeindesaal, dem Ort der Gemeinschaft im Glauben und Leben.
1.1 · Außen
1.16 - 1.19 · Madonna mit Kind (auf Mondsichel)
Diese Skulptur befand sich bis 2005/6 in der Kirche im Schiff / Südwestwand. Foto unten bei 9.
Klick ins Bild startet Diashow (4 Bilder)
1.2 · Die "große Schwester" in Schneidemühl / Piła
Ingrid Felber-Bischof, Kirchengemeinderätin und viele Jahre bei der Neugestaltung der St. Antonius-Kirche intensiv beteiligt, schrieb mir:
Irgendwann bei den Recherchen stieß ich auch auf eine St. Antonius-kirche, die Herkommer zwei Jahre vor der Kaltentaler Kirche, von 1928-30 gebaut hatte, in Schneidemühl, heute Pila, damals Westpreußen, heute Polen.
Es ist verblüffend, wie viele Ähnlichkeiten da zu finden sind! Das Flachdach ist dort übrigens erhalten, und auch in Pila gilt der Bau als herausragendes Beispiel der Moderne.
Diesem Hinweis mit Link bin ich natürlich gefolgt und fand auf der Website "Kirchenbauforschung", betrieben von Konstantin Manthey, eine Serie von Kirchendarstellungen unter dem ansprechenden Titel "Tägliche Kirche". Dort wird die St. Antonius-Kirche in Schneidemühl (Piła) vorgestellt (publiziert als Nr. 64 im Mai 2020).
Eine zeitgenössische Würdigung findet man in der "Rottenburger Monatsschrift für praktische Theologie": im 14. Jg 1930/31.. 
Titel, Inhaltsverzeichnis und Artikel von J. Rohr hier zum Download.
Die Ähnlichkeit zu St. Antonius in Stgt-Heslach ist verblüffend, auch wenn in der Korrespondenz zwischen Hans Herkommer und Pfarrer Mager dazu nichts zu finden war.
Landkarte, wo Pila liegt, 3 weitere Bilder - alle 1929/30 in "Die christliche Kunst" 26. Jg, S. 367ff publiziert - mit freundlicher Genehmigung Herrn Mantheys hier übernommen.
Auf der o.a. Website auch Farb-Fotos der Kirche (außen / innen) heute.
2.1 · Grundriss
2.2 · Innen Übersicht
Klick ins Bild startet Diashow (16 Bilder)
3 · Orgel
Die Orgel in St. Antonius wurde von der Firma Schmid aus Kaufbeuren gebaut. Sie hat eine mechanische Traktur, zwei Manuale und Pedal mit insgesamt 19 Registern sowie ein Koppelmanual.
4 · Madeleine Dietz: Ambo, Altar, Taufbecken, Marienkapelle
Madeleine Dietz:
Erde und Stahl sind meine Hauptarbeitsmaterialien. Die Erde ist für mich das Symbol von Werden und Vergehen. Sie ernährt uns, wir gehen in sie zurück. Sie beinhaltet ein Nebeneinander von Leere und Fülle, Dürre und Fruchtbarkeit. Erde, die von mir getrocknet wird, bildet Risse, bricht in Stücke. Wie schon seit Tausenden von Jahren werden diese Stücke durch Brennen haltbar gemacht. Ein wüstenähnliches Bild entsteht. Aus einfachem Walzstahl baue ich meine Schatzkästen, Schreine oder Tresore. Ob Altar, Ambo, Tabernakel oder Taufbecken, sie sind aus diesem Schwarzblech gearbeitet, welches die getrocknete Erde trägt, aufbewahrt, eingrenzt und schützt.
Wichtig erschien mir auf das Vorhandene im Kirchenraum einzugehen. Die Form des Ambos als auch die des Altars habe ich der Kreuzgestalt entnommen, welche auf dem restaurierten Wandgemälde dargestellt ist.
Mit der rotbraunen Erdfarbe, versuche ich die architektonischen Vorgaben aufzunehmen. Ich versuche eine Verbindung herzustellen, die die liturgische Ausstattung mit dem Raum verwachsen lässt, ohne meine eigene Formensprache zu verlassen.
Das Kreuz, welches ich im Altar in Form von Erdstücken eingelegt habe, liegt parallel zum Himmel, zwischen Erde und Sonne.
Quelle: Festschrift 2006
Klick ins Bild vergrößert
4.01 - 4.04: Ambo
4.11 - 4.16: Altar (Diashow 6 Bilder)
4.21 - 4.33: Taufbecken mit Kerzenständer, Marienkapelle, Weihwasserschale
5 · Fresco (Albert Burkart) an der Chorrückwand · Tabernakel (Madelaine Dietz)
Künstlerischer Höhepunkt der neu erbauten Antoniuskirche wurde das Altarbild (Fresco) von Albert Burkart (1898 Riedlingen - 1982 München). Franziskus und Antonius stehen unter dem Kreuz, der Gekreuzigte wendet sich ihnen zu, stellvertretend für die ganze Menschheit. Als „liturgisches Bild" wurde es charakterisiert, kein herkömmliches Andachtsbild, sondern „Ausdruck dafür, dass das individuell religiöse Leben in unserer Zeit einmündet in das religiöse Leben der Kirche, in die Liturgie", nicht Kultbild mit byzantinischer Prägung, sondern „im Gebet der Kirche neigt sich das Haupt der Gottheit der gläubigen Menschheit zu" (Zitat: Müller-Erb, Zeitschrift „Hochland", 1932).
Klick ins Bild vergrößert bzw. (unten) startet Diashow
6 · Die Antoniuskirche 1932
Bereits im Pressespiegel von 1932 wurde der von Hans Herkommer errichtete Neubau der St. Antoniuskirche in Stuttgart-Kaltental als „wirtschaftliche Leistung und künstlerische Tat" bewertet (Zitat: Witwitzky, „Kölnische Volkszeitung", 1932).
Entwickelt aus dem Denken der Liturgischen Bewegung entstand eine „Wegekirche", deren baulicher Abschluss der „Hochaltar" bildete. Die Hervorhebung des Altares stand noch deutlich unter dem Zeichen der Messe als Opfer, „Mess-Opfer". Zwar wurde die Kirche von Herkommer schon als „Einraum" mit zwei Zonen (Altarraum und Kirchenschiff) konzipiert, die Gemeinde hatte aber am liturgischen Geschehen noch keinen wesentlichen Anteil. Die Messe wurde „gelesen", die Gemeinde wohnte bei.
Neo-Bauformen waren zu Beginn der dreißiger Jahre des vergang-enen Jahrhunderts durchaus noch Realität. Auch Herkommer hat mit dem Aufgreifen des basilikalen Querschnitts in St. Antonius (hohes Mittelschiff, flankiert von niederen Seitenschiffen) in der Außengestalt eine bewährte Bauform aufgegriffen.
Durch eine geschickte statische Lösung, „Überbrückung einer pfeilerlosen Basilika" (Zitat: aus „Hans Herkommer", Berlin, Leipzig, 1929), schafft er einen weiten freien Raum, den Einraum.
Nahezu alle zeitgleich erbauten Stuttgarter Kirchen (St. Fidelis, St. Georg, St. Clemens) trennen den Raum noch durch Stützenreihungen in Mittel- und Seitenschiffe.
In den Wirren des Dritten Reiches verpasste man dem Turm eine andere Erscheinung als sie Herkommer geplant hatte und beförderte so das Leichte und Moderne dieses Bauwerks in einen anderen Geist.
Quelle: Festschrift 2006
Im Buch "Kirchenbau im Wandel" von Gottlieb Merkle (Rottenburg 1973 - ISBN 3 7966 0456 0) werden mehrere Kirchen von Hans Herkommer besprochen und vorgestellt. Darunter mit 2 Skizzen Herkommers auch die St. Antoniuskirche. Hier zunächst der Entwurf wie der Bau ins Tal blickt:
Turmfassade 1932
Fresco von Emil Glücker (1896 - 1971) · Hl. Elisabeth von Thüringen mit Bettler · Quelle: Brenzkirche Stuttgart · Magisterarbeit Ute Schüler 1998
Anke Blümm beschreibt in ihrem Buch "Entartete Baukunst"? - Zum Umgang mit dem Neuen Bauen 1933 - 1945 (Wilhelm Fink Verlag München 2013) detailliert und spannend zu lesen das Schicksal zweier Stuttgarter Kirchenbauten im 3. Reich: St. Antoniuskirche & Brenzkirche. Mit freundlicher Genehmigung der Autorin darf ich nachfolgend daraus zitieren, wobei die Lektüre dieses Buches nachdrücklichst empfohlen sei.
St. Antoniuskirche (S. 258 - 266) · Brenzkirche (S. 267 - 272) u.a.a.O.
Zur Antoniuskirche:
Herkommer legte großen Wert darauf, dass dieser Raum durch den abgetreppten Querschnitt am äußeren Baukörper deutlich ablesbat war. Tatsächlich bestimmen auch heute noch zwei Seitenschiffe und ein erhöhtes Mittelschiff von der Burgstraße aus die äußere Gestalt des 31 Meter langen und 11,5 Meter breiten Baus. An den fehlenden Obergadenfenstern wird ersichtlich, dass es sich nicht um eine Basilika handeln kann. 
Der 13,95 Meter hohe Turm mit Kreuz, der sich vom Tal aus gut sichtbar erhob, orientierte sich nicht an traditionellen Vorbildern aus dem Sakralbau. Ein weit vorklagendes Pultdach bildete den Abschluss dieses Baukörpers. Es wurde von zwei schmalen, dunklen Betonstützen getragen, die wiederum unten auf einen kleinen Vorbau mit fünf Rundbogenfenstetn trafen. Direkt unterhalb des Daches befanden sich drei waagerechte Schallschlitze für die Glocken. Gleichzeitig bot das Pultdach Schutz für das an die Turmwand gemalte Fresko des Künstlers Emil Glücker, das die Heilige Elisabeth darstellte. Die Kirche war im Ursprungszustand gelb-weiß verputzt.
Rundbogenfenster in unterschiedlicher Anzahl und Größe bildeten die formale Klammer von Langhaus und Turm. Sein Licht erhielt der Kirchenraum durch die sieben schmalen Fenster in beiden Seitenschiffen. Im Mittelschiff befand sich ein bis auf die Erde gehendes, hohes Rundbogenfenster, in das die Haupteingangstür eingelassen war. In der zum Kirchenschiff gerichteten Südostseite des Turmes wiederholte sich das Rundbogenmotiv in fünf schmalen Öffnungen. Eingeweiht wurde die Kirche nach der kurzen Bauzeit von nur einem halben Jahr am 14. Februar 1932.
...Aber auch das Stadterweiterungsamt meldete im Mai 1931 Vorbehalte an und die Baupolizei verweigerte die Genehmigung des eingereichten Baugesuchs. Pfarrer Mager gab in einem Brief an das Amt dem Archi-tekten Herkommer Rückendeckung, indem er auf den bereits ausge-reizten Kostenrahmen hinwies und eine größere Kirche vollkommen ausschloss:
„Monumental- und Prunkkirchen haben heute kein inneres Recht mehr, sie sind auch gegenüber unserer Notzeit ein eklatanter Widerspruch zur harten Sorge [...]. Ein ragendes Dach schiene mir [...] fast wie ein Bluff."
Der Leiter des Stadterweiterungsamtes Hermann Ströbel versuchte daraufhin, die Wünsche der Stadt genauer auf den Punkt zu btingen:
„Wir sind [...] auch vollkommen mit Ihrer Auffassung einig, dass weder eine .Monumental- noch eine Prunkkirche' für den Platz erforderlich oder geboten wäre. Aber das vorliegende Projekt sucht gerade in seiner architektonischen Haltung eine monumentale Witkung zu erzielen, die bei den geringen Abmessungen der Kirche, insbesondere zur Umgebung als verfehlt bezeichnet werden muss. Wir sind der Meinung, dass eine Vereinfachung des Baukörpers eine stärkere Wirkung der Kirche und wahrscheinlich eine Verbilligung zur Folge hätte."
Die Antwort der Behörde bleibt unklar und widersprüchlich, vor allem bei näherer Betrachtung des im Folgenden ausgehandelten Kompro-misses.
Nachdem sich Herkommer bereit erklärte, das Mittelschiff um 65 Zentimeter und den Turm um einen Meter zu erhöhen, wurde die Baugenehmigung erteilt. Es scheint, dass unausgesprochene Vorbe-halte gegen die ungewohnte Architektur die tieferen Gründe für den Konflikt waren und der Wunsch nach „Vereinfachung" auf eine tradi-tionellere Gestaltung abzielte.
Im Gegensatz zum Stadterweiterungsamt war die Gemeinde mit dem Ergebnis zufrieden, was sich sicherlich auf die gute Zusammenarbeit zwischen Architekt und Pfarrer zurückführen lässt. Die Zeitungsartikel in Stuttgart und Umgebung zeugten nach der Einweihung ebenfalls von einer positiven Resonanz. Es wurde beispielsweise die „einladende Geste des Turmes" betont, selbst wenn dem Bau eine gewisse Eigen-artigkeit nicht abgesprochen wurde.
7 · 1938 "Entschandelung" des Turmes
Schon ein Jahr nach der Einweihung der Kirche übernahmen die Nationalsozialisten die Reichsregierung und der bereits erwähnte Karl Strölin wurde Oberbürgermeister von Stuttgart. Gegenüber der Archi-tektur der St.-Antonius-Kirche verschärfte sich der Ton, wie ein im April 1933 veröffentlichter, anonymer Artikel des NS-Kuriers unter dem Titel „Bausünden an Gotteshäusern" zeigt:
„In das Tal hinab steht ein Bauwerk, das man zunächst für einen Aus-stellungsbau halten würde. Nur das unverhältnismäßig große Kreuz auf dem Dach läßt einen anderen Sinn vermuten. Zwei überzüchtet schlanke Betonsäulen halten dies Dach, das weit ausladend hervorragt. Es wird sich um die Eingangshalle handeln! Aber nein... [...] Das große Vordach ist lediglich zur Beschirmung aufdringlich großer Fresken bestimmt. Vom Eingang im Süden her hat die Kirche ihr zweites Gesicht. Es ist uns vertrauter. [...] Aber wie kleinlich wirkt die Anfügung der Seitenschiffe!"
Im Zentrum der Kritik, deren tendenziöser Unterton unüberhörbar ist, stand erstmals der Turm. Es wurde bemängelt, dass die Kirche nicht als solche lesbar und damit ihr Zweck verunklart sei. Die Beanstandung der St.-Antonius-Kirche lautete im Weiteren, sie sei „undeutsch" und „intellektueller Ausfluß einer ästhetischen Geschmacksrichtung". Pauschale rassistische und gegen eine rein verstandesmäßige Kunst argumentierende Schlagworte sind typische Gemeinplätze des nationalsozialistischen Vokabulars und erinnern an die Diffamierung der „Entarteten Kunst".
An den Vorwurf, dass der Bau nicht als Kirche erkennbar sei, schloss eine weitere Kritik an, und zwar vom Bund für Heimatschutz in Würt-temberg und Hohenzollern. Die 1909 gegründete, private Organisation war der Landesverein des seit 1904 bestehenden Deutschen Bundes Heimatschutz und hatte sich zum Ziel gesetzt „die schwäbische Heimat in ihrer natürlichen und geschichtlich gewordenen Eigenart zu schützen." In seiner jährlich publizierten Vereinszeitschrift Schwäbi-sches Jahrbuch findet sich 1935 unter der Überschrift „Fabrik oder Kirche?" ein Foto des Baus mit dem Kommentar: „Der Volksmund hat die bezeichnenden Benennungen ,Seelensilo' oder ,Gotteskraftwerk' für kirchliche Bauten dieser Art geschaffen."Das obere Foto stellt einen bisher nicht identifizierten Sakralbau dar, unten abgebildet ist die St.-Antonius-Kirche.
Auch das städtische Amt hatte trotz der Kompromisslösung 1931 seine Vorbehalte gegen den Kirchenbau offensichtlich nicht vergessen. Stadtrat Dr. Schwarz schrieb im März 1938 im Auftrag des Ober-bürgermeisters Karl Strölin einen Brief an die Gemeinde:
„Die katholische Kirche Kaltental ist in ihrer architektonischen Gestaltung so verfehlt und verzerrt, dass sie vom städtebaulichen Gesichtspunkt aus als unhaltbar bezeichnet werden muss. Sie trägt deutlich die Spuren des Baubolschewismus der vergangenen Zeit an sich, und es wird auch Ihnen nicht unbekannt sein, dass dieser Bau eine Zielscheibe für die Spottlus-tigen geworden ist. Nachdem nun die gegenüberliegende evangelische Kirche sich in städtebaulich hervorragender Weise in das Stadtbild einfügt, nehme ich an, dass es Ihnen selbst ein Bedürfnis ist, eine Änderung des heute vollkommen unbefriedigenden Zustandes herbeizuführen. Ich empfehle Ihnen deshalb, Pläne für die architektonische Umgestaltung der Kirche aufzustellen und zur Genehmigung vorzulegen."
In drastischen Worten, die denen im Artikel des NS-Kuriers ähneln, legte Schwarz der Gemeinde nahe, den Kirchenbau umzugestalten. Ohne weitere Erläuterung äußerte er pauschal den Vorwurf des „Baubolschewismus". Eine rechtliche Grundläge für die Empfehlung nannte er nicht, als Anlass für den Brief diente lediglich ein Hinweis auf die neu errichtete evangelische Kirche auf der anderen Seite des Tales.
Die Architektur der 1936 bis 1938 errichteten Thomas-Kirche war im Vergleich zur St.-Antonius-Kirche deutlich traditioneller. Mit ihrem Naturstein und dem leicht geschwungenen Turmhelm aus Schiefer entsprach sie einem historisch inspirierten Kirchenbaustil und fand offensichtlich eine ausgesprochen positive Beurteilung durch die nationalsozialistische Stadtverwaltung.
Der neue Pfarrer Weber sah sich durch den Brief der Stadt veranlasst, beim Bischöflichen Ordinariat um Rat zu bitten, worauf der Bischof Joannes Baptista Sproll der Gemeinde nahe legte, der Aufforderung zu folgen. Höchstwahrscheinlich musste die Gemeinde bzw. das Ordinariat das Vorhaben finanzieren. Es war Hans Herkommer, der den Umbau-auftrag übernahm. Er reichte am 7. Juli 1938 ein Baugesuch ein. Bleistifteinzeichnungen auf den Bauplänen von 1932 weisen auf Beratungen im Stadterweiterungsamt hin und skizzieren die endgültige Ausführung von 1938. Die vorkragende Betonplatte und ihre Stützen wurden entfernt. Auf das vorhandene Flachdach wurde ein neues, 2,40 Meter hohes Satteldach mit der Giebelrichtung achsengenau zum Mittelschiff platziert und das Kreuz von der Turmkante in die Mitte des neuen Daches verschoben. Drei Rundbogen ersetzten die waage-rechten Schallöffnungen. Noch heute lässt sich im Innern des Turmes diese Zumauerung erkennen. Der Rest des Baus blieb unverändert. Weder die Verantwortlichen der Kirche noch der Architekt Herkommer scheinen gegen die deutliche Aufforderung der Stadt protestiert zu haben.
Die 2. Skizze aus dem Buch "Kirchenbau im Wandel" von Gottlieb Merkle (Rottenburg 1973 - ISBN 3 7966 0456 0) spricht für sich (den Architekten) selbst...:
8 · Exkurs: Kirchbau in Stuttgart zwischen 1921 und 1938
Am 13.7.2010 hielt Dr. Norbert Bongartz einen Vortrag "Vom edlen Wettbewerb der Konfessionen beim Kirchenbau in Stuttgart - Zur Baugeschichte der Matthäuskirche". MS hier mit freundlicher Genehmigung des Autors zum Download
In der nachfolgenden Tabelle - dankenswerterweise ergänzt von Ulrich Zimmermann im Jahr 2021 - kann man die Kirchbau-Aktivitäten beider Konfessionen in den 1920er und 30er Jahren ablesen:
| 
 Jahr  | 
 Protestantisch  | 
 Katholisch  | 
 Architekt  | 
| 
 1921-34  | 
 Herz-Jesu (Gaisburg)  | 
 Clemens Hummel  | |
| 
 1924-25  | 
 St,. Fidelis (West)  | 
 Clemens Hummel  | |
| 
 1927  | 
 Andreaskirche (Obertürkheim)  | 
 Heinrich Maas & Horlacher  | |
| 
 1927  | 
 Mariae Himmelfahrt (Degerloch)  | 
 Hugo Schlösser  | |
| 
 1927-28  | 
 Christuskönig-Kirche (Vaihingen)  | 
 Alfred Schmidt  | |
| 
 1927-28  | 
 Waldkirche (Nord/West)  | 
 Artur Bossert  | |
| 
 1928-30  | 
 St. Georg (Nord)  | 
 Hugo Schlösser  | |
| 
 1929-30  | 
 Kreuzkirche (Hedelfingen)  | 
 Volkart & Trüdinger  | |
| 
 1930  | 
 Föhrichkirche (Feuerbach)  | 
 Schwarz  | |
| 
 1930-31  | 
 Kreuzkirche (Heslach)  | 
 Rudolf Behr  | |
| 
 1930-32  | 
 St. Antonius (Kaltental)  | 
 Hans Herkommer  | |
| 
 1932-33  | 
 Brenzkirche (Nord)  | 
 Alfred Daiber  | |
| 
 1933  | 
 Martin-Luther-Kirche (Sillenbuch)  | 
 Emil Weippert  | |
| 
 1933  | 
 St. Clemens (Botnang)  | 
 Hugo Schlösser  | |
| 
 1933-34  | 
 St. Josef (Feuerbach)  | 
 Hans Herkommer  | |
| 
 1934  | 
 Steinhaldenfeld-Kirche  | 
 Paul Heim  | |
| 
 1936  | 
 St. Christophorus (Wangen)  | 
 Clemens Hummel  | |
| 
 1937  | 
 Ev. Wichernkirche (Bad Cannstatt)  | 
 Behr & Oelkrug  | |
| 
 1937  | 
 Martinskirche (Nord)  | 
 Karl Gonser  | |
| 
 1938  | 
 Thomaskirche (Kaltental)  | 
 Hannes Mayer  | |
| 
 1938  | 
 Michaelskirche (Neuwirtshaus)  | 
 Paul Heim  | |
| 
 1938  | 
 Wolfbuschkirche (Weilimdorf)  | 
 H. Seytter  | |
| 
 *********************************  | 
 ******************************************************  | 
 ******************************************************  | 
 ******************************************************  | 
| 
 weitere Kirchen in Stuttgart von  | 
 Hans und (Sohn) Jörg Herkommer  | ||
| 
 1953  | 
 St. Michael (Sillenbuch)  | 
 Hans Herkommer  | |
| 
 1953  | 
 St. Theresia vom Kinde Jesu (Weilimdorf)  | 
 Hans Herkommer  | |
| 
 1957  | 
 Jesus Christus Salvator (Giebel)  | 
 Hans Herkommer  | |
| 
 1967  | 
 St. Thomas Morus (Heumaden)  | 
 Jörg Herkommer  | |
| 
 1972-73  | 
 St. Laurentius (Freiberg)  | 
 Jörg Herkommer  | 
Wie im Buch von Anke Blümm dargestellt, wurden von den Nationalsozialisten in Stuttgart zwei Kirchenbauten in besonderer Weise angegriffen / diffamiert wegen ihres modernen Baustils und mussten verändert werden: St. Antonius in Kaltental und Brenz auf dem Killesberg. Wobei die Kritik wohl vor allem sich an der Flachdachbauweise entzündete, was Hans Herkommer an St. Antonius löste, indem er dem Turm neu gestaltete, aber das Schiff beließ, während bei der Brenzkirche nicht ihr Architekt (Alfred Daiber) sondern ein radikaler Gegner der Neuen Sachlichkeit - Rudolf Lempp - beauftragt wurde. Die Resultate können unterschiedlicher kaum sein... Interessant zu beobachten, dass die beiden anderen Kirchen im Stil des Neuen Bauens, die Kreuzkirche in Hedelfingen und die Kreuzkirche in Heslach, ganz "unbelästigt" blieben.
Ulrich Zimmermann stellte mir noch eine Liste z. V. von fünf kriegszerstörten und/oder abgerissenen und anders wieder aufgebauten ev. Kirchen als Ergänzung zur obigen Tabelle:
- 1926 Stuttgart, Paul-Gerhardt-Kirche: Architekt Zacharias Schäffer Neubau; 1944 fast vollständig zerstört; Architekt Paul Heim 1951/53 Kirchenneubau
- 1928 (Stuttgart-)Bad Cannstatt, Steigkirche: Architekt N.N. Neubau ; Kriegszerstörung; Architekt N.N. 1966 Neubau Gemeindezentrum mit neuer Steigkirche
- 1928 Stuttgart Ost, Lutherhauskirche: Architekt Zacharias Schäffer Neubau als Reformkirche = Kirchensaal, Gemeinderäume, Kindergarten und Wohnungen sind unter einem Dach vereint. Gut erhaltenes Beispiel für die Architektur der "Stuttgarter Schule" mit expressionistischen Elementen; auf Dauer war das Gebäude in seiner ursprünglichen Form jedoch für die Gemeinde nicht mehr finanzierbar, deshalb wurde der Kirchsaal im Jahr 2009 aufgegeben und das gesamte Gebäude in Wohneigentum umgebaut. Einweihung des neuen Gemeindehauses bei der Lukaskirche: Okt. 2016
- 1931 (Stuttgart-Untertürkheim-)Luginsland, Alte Gartenstadtkirche: Architekt R. Behr Neubau; jetzt: Gemeindehaus, da 1968 Kirchenneubau
- 1934 (Stuttgart-)Degerloch, Hoffeld-Kirche: Architekt Werner Klatte & Weigle 1934 Neubau; Abriss 2006; Architekt Martin Stockburger 1989 Kirchenneubau
Eine Übersicht über die mehr als 50 Stuttgarter katholischen Kirchen findet man auf Wikipedia als Teil der Liste der Sakralbauten in Stuttgart..
9 · Das Innere der Kirche vor der Neugestaltung 2005
Oben wurde aus der Festschrift von 2006 zitiert:
Entwickelt aus dem Denken der Liturgischen Bewegung entstand eine „Wegekirche", deren baulicher Abschluss der „Hochaltar" bildete. Die Hervorhebung des Altares stand noch deutlich unter dem Zeichen der Messe als Opfer, „Mess-Opfer". Zwar wurde die Kirche von Herkommer schon als „Einraum" mit zwei Zonen (Altarraum und Kirchenschiff) konzipiert, die Gemeinde hatte aber am liturgischen Geschehen noch keinen wesentlichen Anteil. Die Messe wurde „gelesen", die Gemeinde wohnte bei.
Die folgenden drei Bilder (zwei zum Altar, eins nach Süden) aus der Festschrift 2006 verdeutlichen dies architektonisch-theologische Konzept Herkommers (Klicks ins Bild vergrößert)
Gut zu sehen an der linken Seite die Skulptur "Madonna mit Kind" (nun außerhalb der Kirche am Durchgang zum Gemeindezentrum / s.o. 1.16-19), die Orgel vor der rechten Chorwand, Gehäuse holzfarben natur (jetzt im Schiff hinten Mitte, Gehäuse schwarz). Tabernakel vor der linken Chorwand, nun (neu) unter dem großen Fresco von Albert Burkart. Davor Taufstein und - auf gleicher Höhe = 3 Stufen unter der Altarebene, 2 Stufen über dem Schiff - der Ambo.
Mit der Neugestalt durch Pfeifer.Kuhn ging das Herkommer'sche theologische Konzept verloren und wurde ersetzt durch die Leitgedanken .der "Communio-Lösung".
Die Idee, den Altar aus dem Chorraum "herauszuholen" und ins Schiff zu stellen - in Korrespondenz, antipodisch dazu den Ambo, findet man in Stuttgart auch im "Spirituellen Zentrum S", Kirche St. Fidelis im Stuttgarter Westen. Auch dort wurde der Chor seiner ehemaligen Funktion beraubt und der Verlust der Seh- / Denk- / Zielrichtung zu Chor, Altar, Chorbild (Chorfenster) wird den Erstbesucher hier wie dort vielleicht irritieren...
Kanzel - Ambo
Bis zum Tridentinum 1545-1563, der römischen Antwort auf die Reformation, waren Kanzeln für den Messgottesdienst völlig unüblich und wurden ab Ende des 14. Jh. erst allmählich über die Bettel-/Predigerorden (die nicht das Altarrecht hatten) eingeführt und von teils städtisch bestallten Predigern/Prädikanten insbesondere im Raum Württemberg plus süddeutschen Reichsstädten genutzt. Für die Verkündigungspredigt des Ortsgeistlichen war der Ambo im Sakralbereich beim Altar vorgesehen. Das Tridentinum förderte dann doch die Kanzelpredigt, um den inzwischen weitverbreiteten protestantischen Predigtkirchen etwas entgegenzusetzen. Dies wirkte sich ab dem Barock auch im katholischen Kirchenbau aus: Kanzeln als wichtige architektonische Elemente im Innenraum. Das Zweite Vatikanum nahm diese Entwicklung bewusst wieder zurück, stellte klar, dass nur der Ambo im Sakralbereich beim geweihten Altar Ort der Verkündigung des Evangeliums sein könne, und regelte in diesem Zusammenhang auch die Differenzierung zwischen Homilie (des geweihten Geistlichen) und Predigt (auch evtl. durch Laien möglich, nicht jedoch vom Ambo aus!) - siehe: Deutsche Bischofskonferenz: Verlautbarungen des apostolischen Stuhls, Instruktion zu einigen Fragen über die Mitarbeit der Laien am Dienst der Priester, Artikel 3 Die Homilie, § 1 und 2; 15. August 1997
Ulrich Zimmermann (2021)
Hinweis auf 2 Publikationen zum katholischen Kirchbau heute:
Kölner Ausstellung „Fluch und Segen. Kirchen der Moderne“ Begleitheft zum Download.
Leitlinien für den Bau und die Ausgestaltung von gottesdienstlichen Räumen. Handreichung der Liturgiekommission der Deutschen Bischofskonferenz; Die deutschen Bischöfe Band 9, Hg. Sekretariat der Deutschen Bischofskonferenz, 1988, 6. ergänzte Auflage Bonn 2002
10 · Unterlagen aus dem Pfarrarchiv St. Josef Heslach / St. Antonius Kaltental
für www.kirchen-online.com transkribiert · hier zum Download  (Klick auf Titel des Kapitels)
Kürzel: AB = Albert Burkart · Bf = Bischöfliches Ordinariat Rottenburg · EG = Emil Glücker · Hk = Hans Herkommer · Pf = Pfarrer
1930114 Hochbauamt - Pf.docx
19301222 Protokoll Kirchenstiftungsrat.docx
19310116 Hk - Pf (Auftragsbestätigung).docx
19310130 Hk - Pf.docx
1931014 Otto - Pf.docx
19310306 Bf - Pf.docx
19310317 Hk - Pf.docx
19310409 Protokoll Gesamt-Kirchenstiftungsrat.docx
19310421 Bf - Pf.docx
19310506 Spendenaufruf MS.docx
19310508 Protokoll Baukommission.docx
b) Kirchenpatron / Namensgebung
19310515 Bf - Pf.docx
19310626 Pf - Bf.docx
c) Der Streit 1931 mit der Stadt Stuttgart
19310521 Hk - Stadtplanung.docx
19310522 Hk - Pf.docx
19310522 Hk - Schmidt.docx
19310526 Pf - Baupolizei.docx
19310526 Pf - Stadterweiterungsamt.docx
19310602 Stadterw.amt - Pf.docx
19310610 BaupolGenehm (CIMG5983k).jpg
19310615 Pf - Bf.docx
19310922 Baugenehmigung (CIMG5990k).jpg
d) Fertigstellung u.a. Dokumente
19311031 Pf - Bf.docx
19320106 Hk - Pf.docx
19320319 Ostergruß.docx
19330300 Finanzierung Ueberblick.docx
19350606 Hk - Pf.docx
e) Die Künstler Albert Burkart und Emil Glücker
Umfangreiche Korrespondenz und weitere Dokumente zur künstlerischen Ausgestaltung der St. Antoniuskirche.
Detailliertes Inhaltsverzeichnis zu Beginn des Dokuments
Impressum
Kirche St. Antonius Stuttgart-Kaltental fotografiert im Mai 2021
Auf www.kirchen-online.com veröffentlicht  am 28.12.2021 (89 Bilder) SDG
(c) 2021 Foto-Kunst Andreas Keller
Links zuletzt überprüft am 03.06.2022
Besonders herzlich möchte ich mich bedanken bei Pastoralreferent Andréas Hofstetter-Straka und Architekt Manfred M. Scherer, die mir mit vielen Unterlagen und Informationen bei der Erstellung dieser Website geholfen haben.
.
Zum Hauptmenü · Kirchen und Kapellen...
.
.
.
.
.




















