Oberesslingen · Martinskirche
Einleitung
Besucht / betrachtet man heute die Martinskirche, kommt einem nicht in den Sinn, dass hier schon im 13. Jahrhundert eine Vorgängerkirche stand, die im 17. Jahrhundert einen Zwiebelturm bekam und später so baufällig wurde, dass sie Anfang des 19. Jahrhunderts abgerissen und durch einen Neubau ersetzt werden musste. Dieser im "Kameralamtsstil" - so schwäbisch karg und sparsam in allem, dass man sich das heute gar nicht mehr vorstellen kann. 1956 dann ein radikaler Umbau (der heute wohl so nicht mehr denkbar / genehmigt / ja, wahrscheinlich schon gar nicht so beantragt würde). Vom Bau 1828 blieben die Außenmauern und der Turm, Innen alles neu... was aber der Gemeinde im Lauf der Jahrzehnte immer weniger gefiel, so das sie erneut einem radikalem Umbau des Inneren zustimmte.
Nachfolgend wird die Kirche im Zustand des Jahres 2024 vorgestellt; im Literaturverzeichnis und unter dem Menüpunkt "8 Historie" werden die Vorgängerkirchen und die Umbauten gezeigt.
Aus einem sehr schönen kleinen Buch zum letzten großen Umbau (2004) "Atmosphärenwandel" wird nachfolgend vielfach zitiert. Als Introduktion hier zunächst einige Betrachtungen zur Genese der Kirche:
Inhalt
Allgemeine Hinweise · Links
- 1 · Außen
- 2 · Hauptportal - 3 Türen von Ulrich Henn
- 3 · Dachstuhl, Glockenstube, Blick vom Turm
- 4.1 Innen - Sichten zum Chor
- 4.2 Blicke von hinten, vom Chor, von der Empore
- 5 Kruzifixus (Karl Hemmeter) und Prinzipalien
- 6 Das Weihnachtsfenster von Käte Schaller-Härlin (1918)
- 7 Die Orgel
- 8.1 · Historie
- 8.2 Innen vor 1956
- 8.3 Der Umbau 1956
- 8.4 · Atmosphärenwandel - ein neues Konzept 2004 von Bernhard Huber
- Impressum
Johannes Dürr
Die Kirche von 1828 - Tempel der Vernunft in nüchterner Strenge Aufgrund der Bevölkerungszunahme zu Anfang des 19. Jahrhunderts und wegen Baufälligkeit genügte die bescheidene mittelalterliche Kirche in der nordwestlichen Ecke des Friedhofs den Erfordernissen nicht mehr - sie war vor 1265 erbaut und vor 1686 mit einem Zwiebelturm versehen worden. Verantwortlichkeit und Kompetenz für Kirchenneubauten lagen zur Zeit des Neubaus in der Hand staatlicher Baubeamter. Baumeister der Oberesslinger Kirche war Baurat Bernhard Adam Friedrich Groß, Vertreter eines neoklassizistischen Stils. Dieser wird in seinen verschiedenen Ausprägungen auch „Kameralamtsstil" genannt, entsprechend dem Einfluss des staatlichen Finanzwesens. Sein Kennzeichen sind äußerste Sparsamkeit sowie die Anknüpfung an Vorbilder der Renaissance und der Antike im Geist des Rationalismus. So nimmt die Westfront der Oberesslinger Kirche die Giebelform antiker Tempel auf. Dort wie ursprünglich auch im Innern herrscht das Gesetz der Symmetrie - ein Bauwerk sollte die gesetzmäßige Ordnung der Schöpfung und eines ordnenden Verstandes zum Ausdruck bringen. Das Innere präsentierte sich als einfacher Predigtsaal mit Rück- und Seitenemporen, in dessen Mitte über dem Altar die Kanzel stand. Von dort aus sollten die Untertanen belehrt und ihr Leben gebessert werden. In all seiner Nüchternheit strahlte der Raum eine gewisse Feierlichkeit aus. Doch die Entwicklung im Lande ging weiter: Die staatlich geplanten Kirchen wurden als zu weltlich empfunden. Kirchen sollten durch einen eigenen Stil kenntlich sein, nicht zuletzt durch die Anlage eines Chores und die Aufwertung des Altardienstes. Letztlich steht auch der Umbau der Oberesslinger Kirche 1956/57 in diesem Zusammenhang. Beides, Wort und Sakrament, sollten in gleicher Weise im Gottesdienst Raum haben.
Informationen & Links
Zusammenfassung von Pfr. i.R. Ulrich Zimmermann:
(Esslingen-)Oberesslingen, Ev. Martinskirche (Architekt Friedrich Bernhard Adam Groß 1828 Neubau
Predigtkirche im Kameralamtsstil, Kanzelaltarwand, dahinter Sakristei mit Kanzelzugang; Architekt Albert Kimmich 1956/57 einschneidende Umgestaltung mit Choranbau in voller Höhe (siehe Abb. bei Merz und Rupp) und Beseitigung der Innenraum-Symmetrie; Bernhard Huber und Architekt Dag Metzger 2004 umfassende Neugestaltung):
ursprünglich Kanzelaltarwand, heute Choranbau;
Käte Schaller-Härlin 1918 (Weihnachten, Kindermord) im Osten über Kanzel, seit 1956/57 im Westfenster (zum Einpassen in die kleinere Westfensteröffnung wurde dazu das Original-Glasbild leider rundum beschnitten und hinsichtlich Signatur leicht umgearbeitet – Werkstatt Saile
Karl Hemmeter 1957 dominanter Holzkruzifixus;
Ulrich Henn 1973 drei Bronzetüren West (figürliches Gitter aus Rankenwerk: links/rechts Taten und Leidensweg Jesu, Mitte Medaillon Martin von Tour)
Bernhard Huber 2004 Altar, Chorwandmalerei und Gesamtgestaltung
Links
Gesamtkirchengemeinde Esslingen und Kirchengemeinde Oberesslingen, Kirchen und Gemeindehäuser
Bilder der Martinskirche auf Wikipedia
Informationen auf www.kirchbau.de
Siehe auch: Chronik Oberesslingen
Literatur / Quellen:
• Johannes Merz: Der evangelische Kirchenbau in Württemberg; Sonderabdruck aus dem Christlichen Kunstblatt für Kirche, Schule und Haus; Stuttgart 1920, Text S. 10f sowie Abb. 30
• Siegwart Rupp, Kirchenbauten im württembergischen Kameralamtsstil, Schwäb. Heimat 3/1972, S. 178-196
• Wilhelm Berner, Leserbrief zu Schwäb. Heimat 3/1972: 1/1973 S. 44-46
• Siegwart Rupp: Über protestantischen Kirchenbau in Württemberg; in: Schwäbische Heimat, Heft 2/1974, S. 123-136
• Wilhelm Berner, Oberesslingen - Geschichte und Gegenwart. Oberesslingen 1978
• Festschrift zum 150jährigen Jubiläum der Martinskirche vom 3. - 10. September 1978; Hg. Evangelische Martinskirchengemeinde Oberesslingen 1978
• Eva-Maria Seng, Der evangelische Kirchenbau im 19. Jahrhundert : die Eisenacher Bewegung und der Architekt Christian Friedrich von Leins, Tübingen 1995. S. 204, Bilderseite 34 Abb. 97 f
• Jörg Bauer, Johannes Dürr (Hg.), Atmosphärenwandel - Martinskirche Esslingen - Ein künstlerisches Konzept von Bernhard Huber, Regensburg 2005
• Ulrich Gräf; Rudolf Pfisterer: Bauen und Gestalten in der Ev. Landeskirche in Württemberg, 2008, S. 15
• Peter Schaal-Ahlers: Junge Fotografen sehen Kirchen – Evangelische Kirchen in Esslingen; hg. Ev. Gesamtkirchengemeinde Esslingen 2009, S. 35
• Carla Heussler, Zwischen Avantgarde und Tradition. Die Malerin Käte Schaller-Härlin, Stuttgart 2017. S. 141-142.
• Ulrich Zimmermann, Die Predigtkirche und die Querkirche. Protestantischer Kirchenbau in Württemberg. Ubstadt 2025 - ISBN 978-3-95505-592-9 . S. 144ff mit FN 639, 257, 305,
• Broschüre 2023 zu den Türen - Dowload
1 · Außen
Rundgang um die Kirche (im Uhrzeigersinn) mit Sichten aus dem angrenzenden Friedhof
Klick ins Bild öffnet Bildergalerie (20 Bilder)
2 · Hauptportal - 3 Türen von Ulrich Henn
Die drei nach Westen gerichteten Türen wurden von Ulrich Henn 1973 neu gestaltet
Zu den Türen, gestaltet von Ulrich Henn, erschien 2023 eine schöne Broschüre, verfasst von Christel Hoffmann, die über die Website der Kirchgemeinde zum Download angeboten wird. Ihr sind die nachfolgenden Informationen entnommen.
Die Linke Tür zeigt die Barmherzigkeit Christi
Die Mittlere Tür zeigt den Kirchenpatron, den Hl. Martin - auf dem Pferd, seinen Mantel für den Bettler teilend
Die Rechte Tür folgt der Passionsgeschichte nach Matthäus 26 und Johannes 19
Die Linke Tür
.
.
.
.
zeigt die Barmherzigkeit Christi - 5 Szenen "im Weinlaub" ("Ich bin der Weinstock - ihr seid die Reben") - Joh. 15, 1 - 8
Von unten nach oben:
L1: Jesus, der gute Hirte (Jh. 10, 11)
L2: Die Heilung des Kranken am Teich Bethesda (Jh. 5, 3 - 9)
L3: Die Fußwaschung (Jh. 13, 1 - 20)
L4: Die Auferweckung des Lazarus (Jh. 11, 1 - 45)
L5: Die Hochzeit zu Kanaa - Das Weinwunder (Jh. 2, 1 - 10)
Die Mittlere Tür
.
.
.
.
zeigt den Kirchenpatron, den Hl. Martin - auf dem Pferd, seinen Mantel für den Bettler teilend
Informationen zu Martin von Tours auf
Die Rechte Tür
.
.
.
.
folgt der Passionsgeschichte nach Matthäus 26 & Johannes 19
Von unten nach oben:
R1: Verrat durch Judas, Gefangennahme (Mt 26, 47 - 49)
R2: Jesus in Gethsemane (Mt. 26, 36 - 46)
R3: Ecce homo (Jh 19, 1 - 5)
R4: Kreuztragung (Jh 19, 17)
R5: Jesus am Kreuz - Ein Soldat gibt ihm Essig zu trinken (Jh. 19, 28 - 30)
Einzelbilder
Türgriffe Süd- & Nordportal (Ulrich Henn 1982)
3 · Dachstuhl, Glockenstube, Blick vom Turm
Klick ins Bild öffnet Bildergalerie (24 Bilder)
4.1 Innen - Sichten zum Chor
4.2 Blicke von hinten, vom Chor, von der Empore
5 Kruzifixus (Karl Hemmeter) und Prinzipalien
6 Das Weihnachtsfenster von Käte Schaller-Härlin (1918)
Wilhelm Berner (1978):
"Im Herbst 1918 wurde das Weihnachtsfenster eingebaut, das bis zum Umbau das Halbrund über der Kanzel ausfüllte. Es ist von Käthe Schaller-Härlin aus Stuttgart-Rotenberg entworfen und von der Glasmalerei Saile in Stuttgart ausgeführt. Es handelt sich dabei um eine Stiftung des Oberamtsbaumeisters Wilhelm Pfäfflin, der 1910 in Bad Cannstatt verstorben war. Die Kosten betrugen 1300 Mark, von denen die Künstlerin für den Entwurf 300 Mark bekam.
Das Kunstwerk mußte beim Umbau in das halbrunde Fenster über dem Haupteingang verlegt werden, wo es von der Empore aus gut sichtbar ist und bei Abendgottesdiensten, wenn das Licht in der Kirche brennt, von außen zu einer guten Wirkung kommt. Es zeigt vier Szenen aus der Geburtsgeschichte unseres Heilands: Seine Geburt, die Anbetung der drei Weisen aus dem Morgenland, den Kindermord in Bethlehem und die Flucht nach Ägypten. ...
Wir haben Frau Schaller-Härlin 1956 auf dem Rotenberg einmal besucht, und sie ist in diesem Jahr auch zu uns in unsere Martinskirche gekommen, bevor sie 1973 im Alter von 95 Jahren starb."
Auch Dr. Carla Heussler beschreibt das Bild in ihrer Monographie (2017). Sie berichtet von 2 Entwürfen (Kreuzigung / Grablegung), die beide von der Gemeinde abgelehnt wurden. "...Dennoch wurde im Herbst 1918 das ... Fenster oberhalb der Kanzel eingebaut."
In einem "Sonderabdruck aus dem Christlichen Kunst=Blatt für Kirche, Schule und Haus" aus dem Jahr 1921 (?) schreibt der Verfasser, Prälat D. Johannes Merz:
"Auch auf dem Gebiet der bildenden Kunst konnte vom Verein während des Krieges manches kirchlich Wertvolle angeregt und gefördert werden. Ich nenne als Beispiele: das farbige Figurenfenster in Obereßlingen (Abb. 30), nach Karton von Frau Schaller-Härlin ausgeführt in der Glasmalerei=Anstalt Saile, Stuttgart. Die von dem Umriß des Fensters scheinbar unabhängige Einteilung steigert tatsächlich den Eindruck des halbrunden Raumausschnitts. Die strenge Stilisierung zeigt die berechtigte Art dessen, was man Expressionismus nennen kann, lebendigste Charakteristik ist in ihr beschlossen, sie wirkt ungemein flächig. Die kleinfigurige Darstellungsweise ist bei Glasfenstern auch auf größere Entfernung vollkommen deutlich, viel reizvoller als große gemalte Fläche und erzielt eine räumlich geschlossene Wirkung. ..."
Das erwähnte Bild ist auf S. 28 des Sonderdrucks zu sehen - Format 8,5 x 4,2 cm s/w. Hier vergrößert übernommen, wobei die Bild-/Druckqualität natürlich nicht gut ist.
Zum Vergleich Original 1918 zu 1956/57 siehe unten.
Klick ins Bild unten startet Diashow (7 Bilder)
Totale - Einzelbilder ol or ul ur - Signatur & Stifter (ul) - Saile (ur)
Vergleich 1918 Ostfenster | 1956 Westfenster
Ein Vergleich des Abbilds aus den Anfangsjahren mit dem nach dem Umbau (hier Foto aus 2024) zeigt, dass nicht unerhebliche Eingriffe notwendig waren, um es von der Ostwand über der Kanzel in das Westfenster zu übertragen. Insbesondere die Fußleiste ist kpl. entfallen, in den Bögen links und rechts wurde ein Segment herausgenommen, die Kreisbiegung ist dadurch deutlich steiler, bei den Figuren in den beiden oberen Bildern wurden teilw. die Köpfe angeschnitten.
Die Signaturen (Käte Schaller-Härlin / Werkstatt Saile) und der Stifter in den Außenbögen unten links und rechts sind wahrscheinlich 1956ff hinzugefügt worden - auf dem Bild 1921 ist davon nichts zu erkennen, dafür rechts unten die Jahreszahl "30.XII.1910" - Verweis auf den Stifter
Im Kirchengemeindeblatt Juni 1973 erscheint ein Nachruf auf Käte Schaller-Härlin, verfasst von Pfarrer Wilhelm Berner - mit Bild des Weihnachtsfensters. Auszüge hieraus:
Das Weihnachtsfenster unserer Martinskirche
Am 9. Mai 1973 ist in Stuttgart-Rotenberg die Malerin Frau Käte Schaller-Härlin im Alter von 95 Jahren gestorben. Wir verdanken ihr das obenstehende Weihnachtsfenster in unserer Martinskirche. Sein ursprünglicher Platz war über der Kanzel. Da hat es jeder Kirchenbesucher beim Betreten der Kirche gesehen. Jetzt befindet es sich an der Westseite unserer Martinskirche über dem Haupteingang, und man kann das Bildfenster von außen nur am Abend erkennen, wenn die Kirche im Innern beleuchtet ist. Den Gottesdienstbesuchern dagegen, die auf der Mittelempore sitzen, leuchtet es mit seinen kräftigen Farben entgegen, sobald sie die Treppen hinaufgestiegen sind und ihre Plätze aufsuchen.
Was das Fenster darstellen will, ist leicht zu erkennen. In vier Szenen wird die Weihnachtsgeschichte dargestellt: Die Geburt Jesu — Maria und Josef beten das Kindlein an, und Ochs und Esel schauen zu — die drei Weisen aus dem Morgenland bringen dem Kind ihre Gaben — zwei Bilder voll großer Freude und tiefen Glücks. Aber dabei bleibt es nicht: Der Kindermord von Bethlehem zeigt die klagenden Mütter mit ihren toten Kindern und die Soldaten mit ihren spitzen Schwertern — und tief betrübt machen sich Maria und Josef mit dem Kind auf den Weg zur Flucht nach Ägypten.
Die Künstlerin hat mit vollem Bedacht die Geburt des Kindleins und die Anbetung der Weisen in den Bogen des halbrunden Fensters hineinkomponiert, um die Enge des Stalls zu zeigen, wobei das Kind, das doch die Hauptperson ist, sich nicht an der höchsten Stelle des Bogens befindet, sondern auf der Seite, wo es so gar »niedrig und gering« zugeht. Der Kindermord und die Flucht sind zwischen die Häuser von Bethlehem hineingestellt; aber geteilt sind diese beiden Bilder durch zwei Bäume — wie wenn sie die Fliehenden schützen wollten. Die Künstlerin hat wohl an die »Christuslegenden« der Selma Lagerlöf gedacht, die von einer Dattelpalme in der Wüste erzählt, die sich vor dem Kind tief herunterbeugt und den Halbverhungerten ihre Früchte reicht.
Das Fenster stammt aus dem Jahr 1917 und ist aus drei Entwürfen ausgewählt worden. Frau Schaller-Härlin hat außer dem Weihnachtsbild noch eine Kreuzigungsgruppe, und der Maler Rudolf Yelin d.Ä. die Verklärung Jesu auf dem Tabor vorgeschlagen. Der Stifter, Oberamtsbaumeister Pfäfflin, hat den modernsten Entwurf ausgewählt. ...
Bevor wir im Jahr 1956 mit dem Umbau unserer Martinskirche begonnen haben, haben wir uns überlegt, ob wir unser Weihnachtsfenster nicht durch vier weitere Bilder ergänzen und dieses große Rundfenster im Chor der Kirche, also im Angesicht der Gemeinde lassen sollten. Zu diesem Zweck haben wir Frau Schaller-Härlin am 7. Januar 1956 hierher geholt, und da hat sie ihr Werk aus dem Jahr 1917 noch einmal gesehen. Wir haben aber den Gedanken an ein Chorfenster aufgegeben, weil wir das große Kreuzigungsbild von Karl Hemmeter nicht durch Gegenlicht stören wollten. Frau Schaller-Härlin hätte wohl schon noch die Kraft besessen, zu den vorhandenen vier weitere Szenen aus der Kindheitsgeschichte Jesu zu gestalten. Denn sie war, obwohl schon 78jährig, sehr vital. In ihrem Atelier standen eine große Zahl neuer und neuester Bilder, vor allem geistvolle Porträts und warmempfundene Blumenstilleben. ... (B)
7 Die Orgel
Detaillierte Informationen zur Orgel auf Organ.Index (inkl. Disposition)
8.1 · Historie
Die Oberesslinger Kirche wird erstmals 1275 erwähnt. Seit 1360 waren und blieben die Grafen von Rechberg Patronatsherren. Bedeutendste Pfarrer waren der vielfach erwähnte Meister Konrad (1280–98), der 1452 investierte Petrus Mayer, ein Freund des Esslinger Humanisten Niklas von Wyle, und der durch seine Schriften ungemein populäre Pietist Philipp Emanuel Brastberger, der zwischen 1745 und 1756 in Oberesslingen amtierte. Der erste evangelische Pfarrer erscheint 1534. Das Patrozinium war lange Zeit unbekannt. Ein Eintrag im Urbar des Katharinenhospitals von 1493 könnte für ein Martinspatrozinium sprechen, was auf ein hohes Alter hinweisen würde. Das Aussehen der Kirche vermittelt ausschließlich die Ortsansicht im Kieserschen Forstlagerbuch von 1686: Erkennbar ist ein hoher Turm mit barocker Zwiebelhaube. Dieser Bau, im nördlichen Teil des heutigen Friedhofs gelegen, wurde abgerissen, die neue Pfarrkirche in unmittelbarer Nähe 1828 erbaut.
Quelle: leo.bw
So sah Oberesslingen mit der Martinskirche Ende des 17. Jahrhunderts (vielleicht) aus. Die Kirche mit Zwiebelturm und Hahn wurde wegen Baufälligkeit Anfang des 19. Jh. abgebrochen und durch einen Neubau im Kameralamtsstil ersetzt.
Das von Wilhelm Berner 1978 veröffentlichte Buch "Oberesslingen - Geschichte und Gegenwart" ist bis heute die umfangreichste Darstellung der Geschichte der Kirche vom 13. bis 20. Jh., nachfolgende Publikationen übernehmen im wesentlich die Forschungsergebnisse von Berner.
Über das Bild von Andreas Kieser schreibt er:
"Die Martinskirche mit dem nagelneuen Zwiebelturm, der wohl zwischen 1683 und 1686 errichtet worden ist.
Das Kiesersche Forstlagerbuch legt keinen Wert auf naturgetreue Wiedergabe der ganzen von ihm dargestellten Objekte. Es geht ihm aber um die Heraushebung wesentlicher Merkmale. Bei Oberesslingen scheint ihm wichtig gewesen zu sein: der das Dorf weit überragende Kirchturm; seine Lage am Neckar und am Hainbach, vor allem dessen Mündung und Weg durchs Dorf; ferner das vom Neckartal aus ansteigende Gelände bis zu den bewaldeten Höhen."
Breiten Raum gibt er der Frage, ob die Kirche in den Jahrhunderten seit Entstehen (1265) bis 1956 einem Heiligen geweiht war, oder man nur von der Kirche Oberesslingen gesprochen hat. Mit letzter Sicherheit lässt sich dies - lt. Berner - nicht nachweisen, es gibt aber Anhaltspunkte, dass sie in der Frühzeit dem Hl. Martin geweiht war, dies aber irgendwann verloren hat.
"Baumeister der Kirche Anfang des 19. Jh. war der Königliche Baurat Adam Friedrich Gross, (1783-1861). ... Er gilt als der bedeutendste Vertreter der klassizistisch-byzantinischen Richtung der Baukunst seiner Zeit. ... Sein bestes Werk sind aber nicht die beiden Kirchen, die er im Esslinger Raum gebaut hat, 1827/28 in Oberesslingen und 1837-1839 in Sulzgries, sondern die im Zweiten Weltkrieg zerstörte Münze in der Neckarstraße in Stuttgart von 1843 und einige elegante Herrschaftshäuser, ebenfalls in Stuttgart.
Wenn wir nun die Kirchen in Oberesslingen und Sulzgries näher betrachten, so erkennen wir sehr rasch, was dem Baumeister vorschwebte: Im Äußeren war es ein griechischer Tempel, und im Inneren war es ein Lehrsaal. Der Giebel der Oberesslinger Kirche ist dem eines griechischen Tempels nachgebildet; es fehlen nur die Säulen am Äußeren. ... Das Innere der beiden Kirchen aber sollte nichts anderes als ein Lehrsaal, wir können auch sagen: ein Predigt- oder Betsaal, sein. Wie man Säle für Schulen aller Art brauchte, so auch für den Gottesdienst, der nichts anderes bringen sollte, als Lehre der Moral. Die Kirche war der Sprechsaal des Pfarrers, der im Auftrag und als Vertreter des Königs dem Volk Moral beizubringen, wie der Lehrer Lesen und Schreiben, und der Schultheiß für Ruhe und Ordnung zu sorgen hatte.
Solcherlei Gedanken waren für den Kirchenbau jener Zeit maßgebend. Man hätte ohne viel Mühe die Kirche auch in einen Tanzsaal oder in ein Reithaus umwandeln können, aber ebenso hätte man auch den ehemaligen „Kugeis Saal" in der Bahnhofstraße in Esslingen, der vor einigen Jahren dem Kaufhaus Hertie weichen mußte, und der vor der Erbauung der Stadthalle der einzige große Konzert- und Vortragssaal der Stadt Esslingen war, in eine Kirche verwandeln können. Er unterschied sich von der Sulzgrieser und von der Oberesslinger Kirche, wie sie vor dem Umbau 1956/57 aussah, in seinem Inneren nur dadurch, daß er anstelle der Kanzel eine Bühne für Theater- und andere Aufführungen hatte.
Beide Kirchen aber waren, als sie gebaut wurden, wie antike Tempel „majestätisch hingelagert" (Oswald Spengler).
Seinem das Dorf überragenden Hügel in schönster Lage hat unsere Martinskirche freilich schon längst eingebüßt, weil sie keinen freien Raum mehr um sich hat. Aber daß ihr Baumeister sie an einen der markantesten Plätze des ehemaligen Dorfes hingebaut hat, wird uns auch daraus deutlich, daß nur wenige Meter entfernt davon 1600 Jahre zuvor ein römischer Baron seine turmbewehrte Villa errichtet hatte, die mit ihrer Grundfläche von 20 mal 25 Metern die unserer Martinskirche mit 26 mal 15 Meter beträchtlich übertraf.
Die klassizistischen sogenannten Kameralamtskirchen wurden in zwei Modellen gebaut: beim einen Modell war die Kanzel an einer Breitseite und beim anderen an einer Schmalseite des Rechtecks wie in Oberesslingen und Sulzgries, wobei man noch einige andere Teile des Grundmodells variierte: die Sakristei ein- oder angebaut; das Gestühl in verschiedenartigen Blöcken aufgestellt (in Oberesslingen ist die Querachse auch beim Umbau geblieben, in Sulzgries ist sie verschwunden); den Turm flach oder spitz gemacht und die Durchdringung von Fassade und Turm sowie die Anordnung und die Einteilung der Fenster verschieden gestaltet. Aber während die Sulzgrieser Kirche auch bei dem Umbau 1975/76 ihren Kameralamtscharakter behielt, haben wir unsere Martinskirche durch den Choranbau 1956/57 völlig verändert." (Berner)
8.2 Innen vor 1956
8.3 Der Umbau 1956
Wilhelm Berner:
Wer war denn nun aber auf den Gedanken eines Choranbaus an unserer Martinskirche gekommen? Das war unser Kirchenchor und besonders sein Dirigent, der Musiklehrer Karl Wolf vom Schelztor-Gymnasium, Organist und Chorleiter an unserer Martinskirche vom 15. Mai 1947 bis 31. Dezember 1961. Er hatte schon vor meinem Amtsantritt am 29. September 1952 eine Eingabe an den Kirchengemeinderat gemacht, in der er den Anbau eines Chors an der Martinskirche vorschlug, weil die Kirche für die Kirchenmusik ungünstig sei: Die Emporen seien zu hoch, so daß weder das Orgelspiel noch der Kirchenchor mit seinem Singen genügend zur Geltung kämen. Außerdem mache sich unter den Emporen bei gut besuchten Gottesdiensten eine starke Luftnot bemerkbar. Der Kirchengemeinderat dankte Karl Wolf sehr herzlich für seine guten Dienste in der Gemeinde und für seine Anregungen, sah jedoch keine Möglichkeit zu ihrer Verwirklichung. Da ich selbst aber von Auenstein her mit Oberkirchenrat Kopp, dem damaligen Baureferenten der Kirchenleitung, gut bekannt war, wandte ich mich am 12. Dezember 1952 an ihn, und er versprach, auf eine entsprechende Eingabe des Kirchengemeinderats den Bauberater der Landeskirche, Professor Hans Seytter, zur Prüfung der Möglichkeit eines Choranbaus nach Oberesslingen zu schicken. Dieser kam bereits am 5. Februar 1953 und übergab mit seinem Gutachten und mehreren Plänen eine sehr positive Stellungnahme: „Der in der Kirchengemeinde aufgetretene Gedanke, den kirchlichen Eindruck des Innenraums durch einen Choranbau zu steigern, ist sehr verständlich. Denn die starre, schablonenmäßig ausgeführte klassizistische Kirche ist sowohl am Äußeren wie auch in ihrem Inneren von einer fröstelnden Unpersönlichkeit". Und er schlug als beste Lösung den Abbruch der rechten Seitenempore vor, damit „die starre Symmetrie des Raumes verlassen wird", hielt aber den Verlust von 100 Sitzplätzen für unvermeidlich — was jedoch angesichts der weiter stark wachsenden Gemeinde nicht vertreten werden konnte. Nachdem dieses Gutachten beim Kirchengemeinderat eingegangen war, beschloß er, den Oberesslinger Architekten Albert Kimmich mit der Weiterplanung zu beauftragen und Hauptkonservator Dr. Walter Supper aus Esslingen sowie Baudirektor Hans Gerber vom baden-württembergischen Innenministerium aus Stuttgart um Beratung zu bitten. Nun begann der lange Weg durch die Instanzen. ...
Wir fanden nun aber auch eine weitere Begründung für unsere Pläne eines Choranbaus in der Besinnung auf das Wesen unseres württembergischen Gottesdienstes. Unser Kirchengemeinderat hatte sich mit diesen Fragen schon einmal, anläßlich der Kirchenerneuerung von 1928, befaßt und eine Eingabe an den Evangelischen Oberkirchenrat wegen der Einführung des sogenannten Altardienstes gemacht.
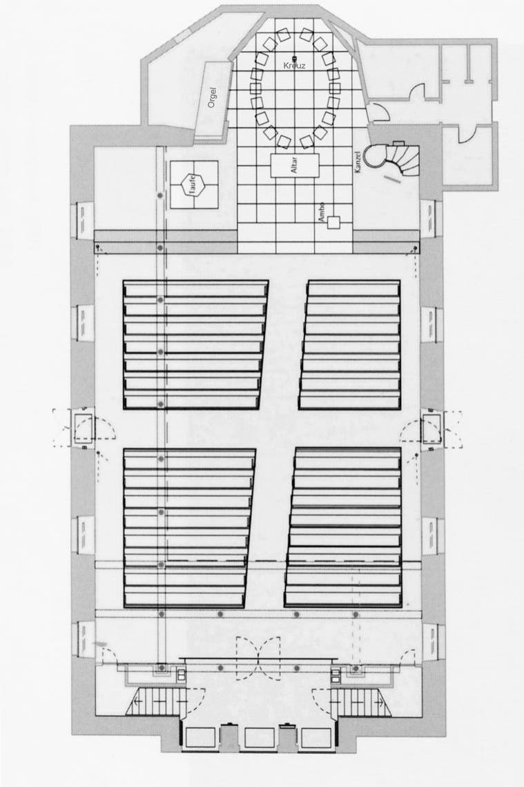
Vergleich Grundrisse 1828 - 1956
Mit dem Schieberegler kann man die Grundrisse von 1828 und 1956 vergleichen:
Verlust der Axial-Symmetrie 1826 (Schiff Mitte - Taufstein - Altar - Kanzel).
1956 Abbruch der südl. Empore, Choranbau - der Altar wird nach rechts verschoben und vorgezogen, links Einbau der Orgel - Taufstein davor, Kanzel auf die rechte Seite vorne. Zentrales neues Element im Chor der Kruzifixus von Karl Hemmeter. Mittelgang im Schiff verläuft leicht diametral.
Diese wurde aber vom Dekanatamt damals nicht weitergeleitet, weil mit seiner Einführung ohnehin in Kürze zu rechnen, aber eine dieser Neuregelung vorausgehende Genehmigung nicht zu erwarten sei. Im württembergischen Gottesdienst gab es bis 1931 keine Liturgie. Er war ein reiner Predigtgottesdienst mit Eingangslied der Gemeinde, Eingangsgebet, Textlesung, Predigt, Schlußgebet und Schlußlied der Gemeinde. Im gewöhnlichen Sonntagsgottesdienst benützte der Pfarrer ausschließlich die Kanzel; am Altar amtete er nur bei den seltenen Abendmahlsfeiern und bei gottesdienstlichen Handlungen, mit denen eine Einsegnung verbunden war, wie Trauung, Konfiirmation und anderen noch selteneren Gelegenheiten, wie Amtseinsetzung eines Pfarrers oder Aufnahme eines Konvertiten. Im Jahr 1931 wurde aber die Schriftlesung nach dem Eingangsgebet und Gemeindegesang vor und nach der Predigt zusätzlich für den sonntäglichen Predigtgottesdienst eingeführt und die Benützung des Altars für Eingang und Schluß des Gottesdienstes, vor allem für das Gebet, als erwünscht bezeichnet. Im Kirchenbuch von 1931 heißt es: „Immerhin tritt bei Verwendung des Altars zu Eingang und Schluß des Gottesdienstes das Gebet in seiner selbständigen Bedeutung gegenüber der Predigt deutlicher heraus". Seine Benützung wurde jedoch freigestellt, besonders bei ungünstigen Sichtverhältnissen. Dies traf für Oberesslingen zu, und daher blieb man bei der alten Ordnung, ohne auf die frühere Eingabe zurückzukommen. Jetzt war es aber möglich, diesen alten Wunsch wieder aufzunehmen: Wenn man einen Chorraum anbaute, konnte man den Altardienst einführen und zugleich von dem rein lehrhaften Verständnis des Gottesdienstes loskommen, das dem Bau der Kameralamtskirchen zugrunde lag! Es gab sich ganz von selbst: In die Mitte des Chors mußte der Altar kommen und dahinter ein beherrschendes Kruzifix. Die Kanzel wurde auf die Seite gerückt und die Orgel in den Chorraum hineingenommen. Dadurch wurde das liturgische Ärgernis der Kameralamtskirchen beseitigt, in denen die Kanzel über dem Altar angebracht ist, so daß der Pfarrer über dem Heiland steht; und vor dem imponierenden Kruzifixus im Chor wird der am Altar amtierende Geistliche notwendigerweise der bescheidene Diener seines großen Herrn.
Nach der alten liturgischen Ordnung hätte die Kanzel ihren Platz auf der rechten Seite des Heilands bekommen müssen. Nun brauchte aber die Orgel mehr Raum als auf der linken Seite zur Verfügung stand.... Daher mußten wir von dieser Ordnung abweichen, was deswegen schade ist, weil unser herrliches Kruzifix nicht während des Hauptgottesdienstes von der Morgensonne beleuchtet werden kann, sondern erst im Nachmittagsgottesdienst von der Mittagssonne Licht bekommt.
Alles Übrige war nur noch eine Frage der Gestaltung. Die Kameralamtssymmetrie wurde beseitigt und die rechte Seitenempore abgebrochen. Wegen des großen Raumbedarfs der Orgel konnte aber der Altar nicht genau auf der Mittelachse der Kirche stehen, sondern mußte mit dem offenen Chorraum nach rechts verschoben werden. Dadurch wurde der Mittelgang der Kirche, auf dem der Kirchenbesucher zum Altar geführt wird, schräg, ohne daß er es merkt. Die beiden Seitenausgänge blieben bestehen und darum auch der Quergang; so konnte das Schiff der Kirche geteilt und die Bänke in der vorderen Hälfte in einem leichten Halbkreis aufgestellt werden. Der Taufstein fand seinen Platz vor der Orgel; die Kanzel wurde oval, und das Kanzelpult zeigt in die Diagonale der Kirche; der Chor durfte kein Fenster in der Mitte haben, um das Kruzifix nicht ins Gegenlicht zu stellen, sondern nur von rechts her zu belichten; die Emporen mußten abgetreppt sein, um gute Sichtverhältnisse zu Kanzel und Altar zu schaffen; durch Notsitze konnte die Platzzahl von mindestens 650 erhalten und in den unter den Treppenaufgängen zur Empore entstandenen Abstellräumen konnten zusätzlich 120 Klappstühle untergebracht werden, die man bei stark besuchten Gottesdiensten nur aufzustellen brauchte. Auch der Einbau der neuen Gasheizkörper in Nischen unter den Fenstern schuf mehr Raum in den Seitengängen und ermöglichte ein paar Jahre später die Verbesserung der Heizung durch die Aufstellung von zwei übereinander angeordneten Heizkörpern. Über dem Chor wurde eine schräge Decke an Ketten aufgehängt, und durch die parallel zu den Außenwänden eingezogenen Decken eine unsymmetrische Dreischiffigkeit der Kirche angedeutet; da die vorgezogene Mittelempore das Kirchenschiff verkürzte, zog man die Bretter der Decken etwas auseinander, damit das Auge ihnen, wie auf einem Steg geleitet, Schritt um Schritt folgen und dadurch den Eindruck größerer Länge gewinnen sollte. Außerdem war durch die abgehängten Decken die Möglichkeit indirekter Beleuchtung von Chor und Schiff der Kirche gegeben.
Altar und Taufstein wurden aus Sandstein angefertigt, um eine Beziehung zum Äußeren der Kirche herzustellen; nur mußten die Steine vom Heuchelberg, in Mühlbach bei Eppingen, geholt werden, weil es im Neckartal keinen Sandsteinbruch mehr gab. An der Südseite des angebauten Chors konnte noch eine kleine Sakristei angefügt werden sowie eine bescheidene Garderobe für den Organisten, den Kirchenchor und die Musiker, und was in der alten Kirche gefehlt hatte, ein WC.
Zum Kameralamtsbau sei auf das Buch von Ulrich Zimmermann verwiesen (S. 144ff), wo er diesen sehr speziellen schwäbischen Bautypus beschreibt. In FN 639 werden 51 Kirchen des Kameralamts-Typus in Württemberg aufgelistet.
Auch Eva-Maria Seng widmet in ihrem Kompendium "Der evangelische Kirchenbau im 19. Jahrhundert : die Eisenacher Bewegung und der Architekt Christian Friedrich von Leins" dem Kameralamtstil mehrere Seiten (S. 203ff), Oberesslingen wird im Text nur erwähnt, unter den beiden historischen Fotos aus dem Jahr 1935 kommentiert Seng den Umbau 1956: "Nach Umbau heute Choranbau in voller Höhe bzw. durch Abänderung der Kanzelaltarwand und Ausbrechen einer Empore entlang einer der Längsseiten bis zur Unkenntlichkeit verändert."
8.4 · Atmosphärenwandel - ein neues Konzept 2004 von Bernhard Huber
Das gleichnamige, sehr schön gestaltete Büchlein beschreibt zunächst die Historie, den Umbau 1956 und das in den Folgejahren immer stärker werden Gefühl, dass man die Gestalt, die Atmosphäre der Martinskirche verändern müsse, um sie zu einem Raum zu machen, den man gerne besucht.
Johannes Dürr schreibt dazu:
"Auf dem Weg zu einer Neugestaltung des Innenraums
...Ästhetisch gab es das Bedürfnis nach Beruhigung und Vereinheitlichung des Raumes mit seinen heterogenen Elementen sowie nach Öffnung im Eingangsbereich, liturgisch nach Zurücknahme der starken Ausrichtung an der Passion, nach mehr Spielraum für die Beteiligung von Gemeindegruppen im Gottesdienst und nach einer bewussten Gestaltung eines Taufbereichs. Um farblich neue Akzente zu setzen, wurde der Künstler Bernhard Huber wegen eines Kunstwerks angefragt. Dieser riet jedoch zum Überdenken der gesamten räumlichen Situation und erklärte sich zur Ausarbeitung einer neuen künstlerischen Gesamtkonzeption bereit (ausführender Architekt: Dag Metzger).
Als Hauptproblem der Kirche erkannte er die unbefriedigende Lichtgebung im Chor und den bühnenartigen Aufbau des Ensembles von Altar und Kruzifix, deren große Distanz das Miteinander-Feiern des Gottesdienstes verhindere. Rasch wurde auch klar, dass eine Wiederherstellung der ursprünglichen Symmetrie zu aufwändig wäre. So wurde beschlossen, die bestehende Grundstruktur des Raumes zu belassen. Dabei sollte der Bruch zur ursprünglichen Situation bewusst sichtbar bleiben. Zugleich wurde hauptsächlich durch eine Veränderung
Vergleich Innenraum VOR / NACH dem "Atmosphärenwandel"
Foto links (c) Bernhard Huber. Freundlicherweise von Reinhard Lambert Auer z. V. gestellt.
Die Martinskirche in neuem Gewand - österliches Licht erfüllt den Raum
Die Grundidee der neuen Konzeption ist der Lichteinfall in den Chor von oben durch eine Glasdachkonstruktion. Dadurch ist ein unmittelbarer Bezug nach außen geschaffen. Der Raum nimmt damit teil am Sonnenstand und unterschiedlichen natürlichen Helligkeiten, er atmet sozusagen Licht. Durch den hellen Steinbelag wird der gesamte vordere Bereich des Raums aufgehellt und somit aufgewertet. Unterstrichen und verstärkt wird der Lichteinfall von oben durch die Wandmalerei von Bernhard Huber im Chor mit ihrer senkrechten Linienstruktur. Sie lässt an ein Prisma denken, durch welches sich das unsichtbare Licht in seinem Spektrum entfaltet. Die äußeren Bereiche sind farblich zurückhaltend gestaltet und spiegeln die Immaterialität des Lichts.
Einen starken Farbakzent setzt dagegen im rechten Bereich ein Muster aus Bändern und Linien. Ursprünglich war die Farbgebung sehr zurückhaltend gedacht gewesen. Doch dem Künstler wurde zunehmend deutlich, dass die Malerei nicht wie eine Tapete wirken dürfe, sondern eine eigene Kraft haben müsse. Mit dem starken Farbakzent sind - im Fluchtpunkt des schrägen Mittelgangs - die Asymmetrie des Raums sowie das gesättigte Rot des Schiffs aufgenommen. Die Malerei wirkt hier wie ein Stück aufgezogener Vorhang des Allerheiligsten. Je länger man die Farbmuster betrachtet, desto mehr bringen sie den gesamten Chorraum zum Schwingen, runden seinen etwas schematischen Grundriss ab und geben ihm eine Tiefenschärfe.
...
Altar, Ambo und Taufstein behaupten sich in diesem erweiterten Raum in ihrer einfachen, kompakten Gestaltung und Materialität. Die acht Blöcke des Altars lassen von allen Seiten eine Kreuzstruktur erscheinen. Durch die Vorverlegung des Altars ergibt sich nun im Chor zwischen Altar und Kreuz ein Feierraum für kleine Gruppen. Auch der Taufstein kann sich jetzt besser behaupten und bestimmt für Tauffeiern einen eigenen, leicht hervorgehobenen Raum; die Form des Plattenbelags nimmt die Form des Altarbereichs auf. Das Sechseck des Taufsteins wird noch lesbar als Reflex der achteckigen Form von Baptisterien. Der Stein gibt in seiner Form die Struktur des Chorraums wieder, der wie ein angeschnittenes Sechseck wirkt. Während am Altar auf Paramente verzichtet wurde, wurden für die Kanzel neue Paramente geschaffen..."
Im weiteren Verlauf kommt auch Bernhard Huber selbst auführlich zu Wort.
Nachfolgend die Grundrisse 1828 und 1956 im Vergleich zum heutigen Ist-Zustand:
Zum Seitenanfang
Impressum
Oberesslingen · Martinskirche fotografiert am im März, April und September 2024 - 130 Bilder
Auf www.kirchen-online.com veröffentlicht am 17.11.2024 SDG
(c) 2024 Foto-Kunst Andreas Keller
Links zuletzt überprüft am 12.10.2024
Danksagung
Herzlichen Dank für die Unterstützung sage ich
- Pfarrer Stefan Cohnen, Evangelische Kirchengemeinde Oberesslingen für die Übernahme der Texte aus den Kirchenführern
- Pfarrar i. R. Ulrich Zimmermann für seine zahlreichen theologischen, systematischen und quellenkritischen Hinweise
Zum Hauptmenü · Kirchen und Kapellen...
.
.
.
.
.


































































